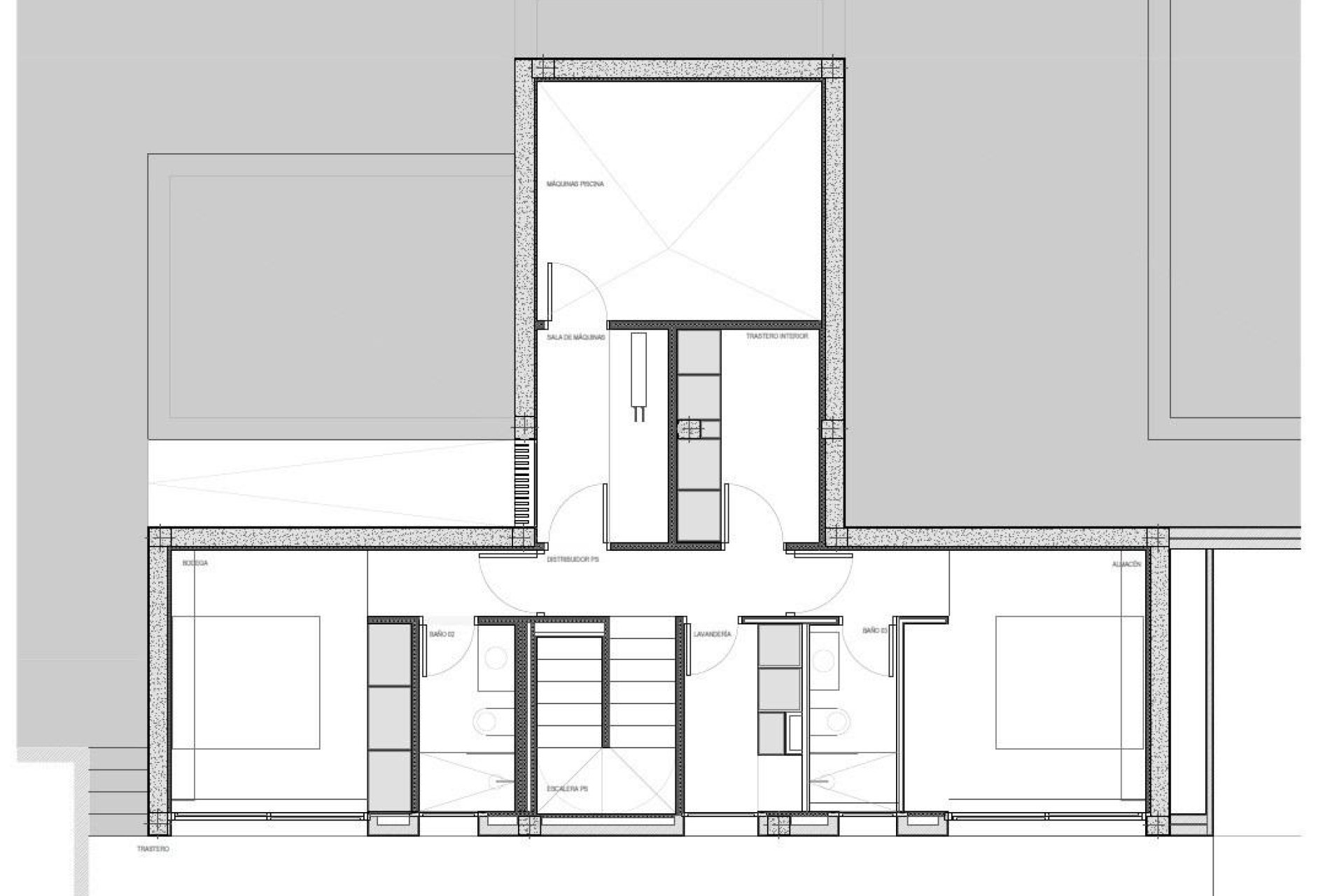
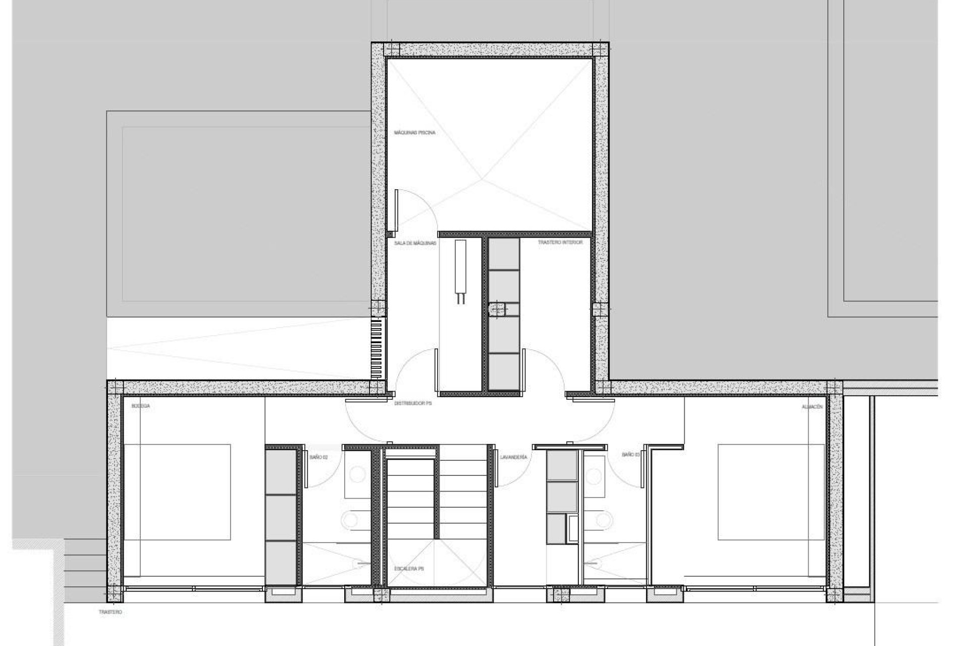
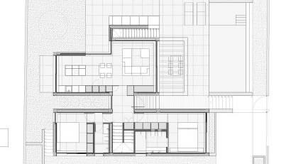
Nybyggd villa med havsutsikt i La Alberca Polop, redo att flytta in Lyxig modern villa i naturskön bergsmiljö Denna moderna villa är redo att flytta in och ligger i La Alberca, ett lugnt bostadsområde i Polop, omgivet av skog och berg. Fastigheten ligger på en höjd och har panoramautsikt över Medelhavet, bergen och den historiska stadskärnan i Polop. Villan erbjuder avskildhet, lugn och utmärkta förbindelser till kusten och närliggande städer. Polop är en charmig by i regionen Marina Baixa på Costa Blanca, känd för sin traditionella karaktär och natursköna omgivning. Fastigheten ligger nära alla tjänster i La Nucia, inklusive butiker, restauranger, idrottsanläggningar och skolor, medan stränderna och de livliga kuststäderna ligger bara en kort bilresa bort. Rymlig planlösning över huvudvåningen, källaren och solariet Villan är fördelad över en bottenvåning, källare och takterrass, vilket ger generöst med boyta och flexibilitet. På bottenvåningen leder en välkomnande entréhall med inbyggd garderob till två sovrum med egna badrum, inklusive en mastersvit med fönsterdörrar som kan öppnas och vetter mot en fransk balkong och terrass. Det öppna vardagsrummet och matplatsen ansluter smidigt till en täckt pergolaterrass och en privat saltvattenpool. Källarvåningen har ytterligare två sovrum med egna badrum och stora fönster, ett flexibelt lekrum eller biorum med vatten- och elanslutningar för en bar, ett fullt utrustat tvättrum med Haier-vitvaror och två tekniska förrådsrum. Solariet på taket erbjuder ett stort utomhusutrymme med panoramautsikt över havet och är förberett för framtida installation av solpaneler. Ett utekök, flera förvaringsskåp och en medelhavsinspirerad trädgård med automatisk bevattning kompletterar exteriören. Högklassiga funktioner och energieffektivitet Denna villa utmärker sig för sina förstklassiga ytbehandlingar och avancerade installationer, inklusive: Central köksö med integrerade BOSCH-vitvaror Bänkskivor i natursten inomhus och utomhus Förinstallation för golvvärme Mitsubishi aerotermiskt luftkonditioneringssystem Energieffektivitetsklass A Förinstallation för smarta hemsystem Saltvattenpool med valfri uppvärmning Privat parkering för två fordon Stora fönster med solskyddsglas maximerar det naturliga ljuset samtidigt som de garanterar komfort och säkerhet. Utmärkt läge och avstånd Polop centrum 2 km La Nucia 4 km Benidorm 12 km Altea 10 km Stränder 10 km Villaitana Golf 14 km Alicante flygplats 65 km Säkra ditt drömhus i Polop Denna exceptionella nyckelfärdiga villa kombinerar avskildhet, design och panoramautsikt i ett av de mest attraktiva inlandsområdena på Costa Blanca. Kontakta oss idag för att boka en privat visning och göra denna lyxvilla i La Alberca Polop till ditt nya hem. 669
Telefon +34 681 953 591
Om du vill ha mer information om denna fastighet, vänligen skicka ett meddelande till Alva. Du kan kontakta henne via Whatsapp eller genom att fylla i följande formulär.
Kontakt av whatsapp