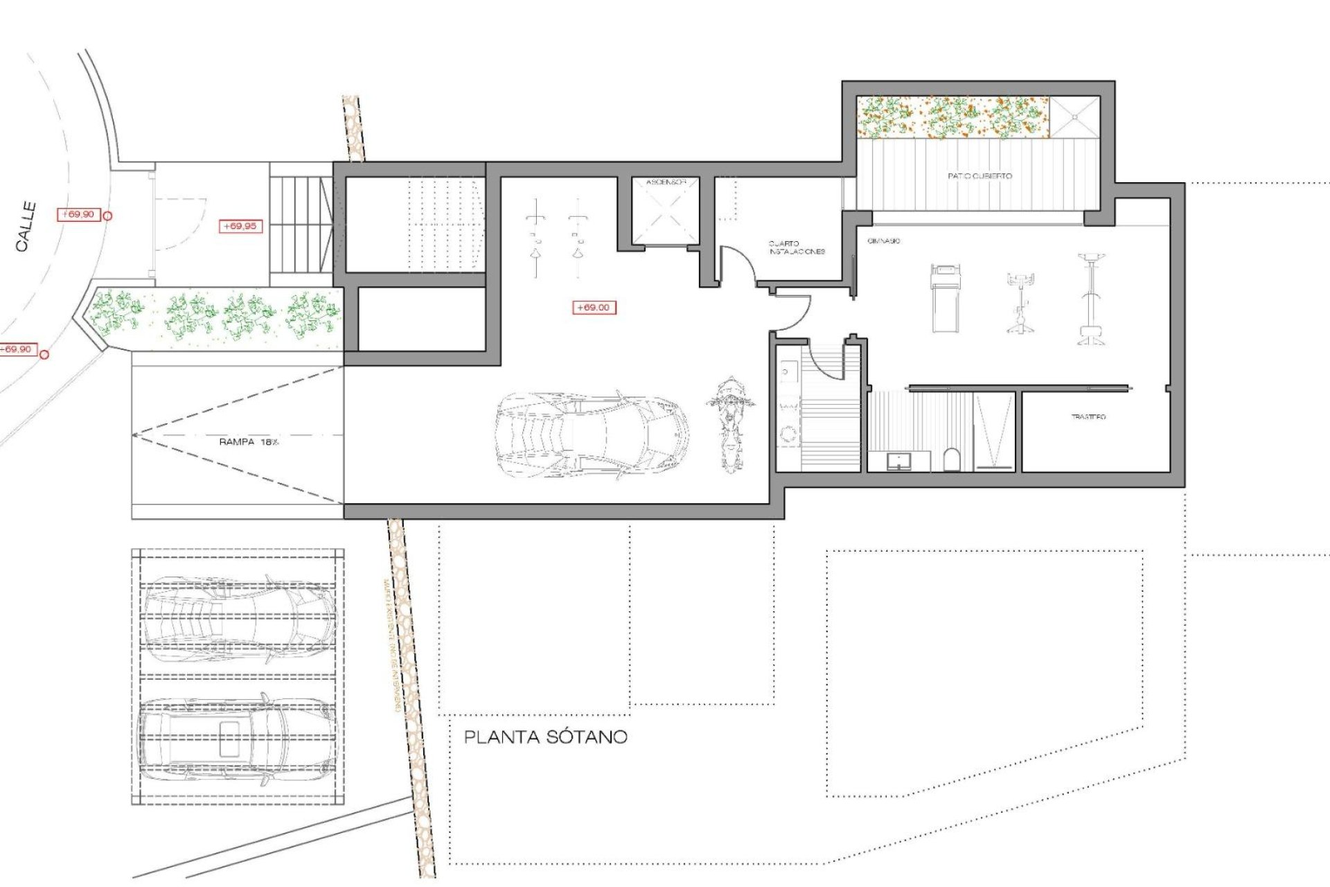
Nybyggd villa i Ibiza-stil med lyxiga detaljer i Javea Exklusiv medelhavsdesign nära El Arenal-stranden Denna fantastiska nybyggda villa i Ibiza-stil i Javea ligger bara 3 km från den berömda El Arenal-stranden, ett av de mest livfulla och attraktiva områdena på norra Costa Blanca. Fastigheten ligger i ett lugnt och välförbundet bostadsområde och erbjuder en exceptionell kombination av elegans, komfort och modern medelhavsarkitektur. Javea är känt för sitt kristallklara vatten, pittoreska vikar, naturparker, marinor och utmärkta restauranger, vilket gör det till en mycket eftertraktad destination både för boende och investeringar. Elegant interiör på två våningar Villan har noggrant utformats för att maximera komfort och stil. På bottenvåningen ansluter ett rymligt vardagsrum och matsal sömlöst till ett fullt utrustat kök, vilket skapar ett ljust och inbjudande öppet utrymme. Denna våning har också en hiss för extra bekvämlighet, en gästtoalett och en central hall som förbinder alla områden. Det finns två dubbelrum med egna badrum, plus ett imponerande master bedroom med stor layout, eget badrum och en integrerad klädkammare. Utomhusliv utformat för medelhavslivet Utomhusutrymmena har skapats för att njuta av det varma klimatet i Javea året runt. Fastigheten har två eleganta pergolor, en vid ingången och en som sträcker sig från vardagsrummet och köket mot den öppna terrassen som omger den 38 m2 stora privata poolen. Bredvid köket finns en extra terrass med grillplats som är perfekt för utomhusmiddagar och sociala sammankomster. Premiumkällare med exceptionella bekvämligheter Källarvåningen kombinerar funktionalitet och lyx med ett öppet garage, hiss, tvättstuga, gym, täckt uteplats, badrum och ett rymligt förråd. Denna våning har utformats för att anpassas till moderna boendebehov och samtidigt erbjuda maximal bekvämlighet. Utmärkt läge i Javea Javea erbjuder en unik blandning av naturskönhet, fritidsaktiviteter och högkvalitativa tjänster. Viktiga avstånd från villan: El Arenal-stranden 3 km Javeas hamn och marina 7 km Javeas golfklubb 3 km Alicantes flygplats 100 km Valencias flygplats 125 km Ditt medelhavshem väntar Oavsett om du letar efter en permanent bostad, ett lyxigt semesterhus eller en förstklassig investeringsmöjlighet, erbjuder denna villa enastående kvalitet och ett oslagbart läge. Kontakta oss idag för att boka en visning och upptäck ditt nya hem i Javea. 669
Telefon +34 681 953 591
Om du vill ha mer information om denna fastighet, vänligen skicka ett meddelande till Alva. Du kan kontakta henne via Whatsapp eller genom att fylla i följande formulär.
Kontakt av whatsapp