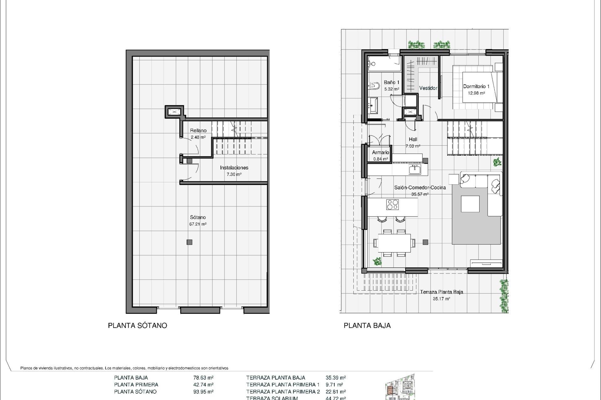
NYBYGGDA PARHUS I POLOP Nybyggda moderna parhus med flera terrasser och solarium, helt inhägnad, med parkeringsplats för fordon och privat pool i Polop. Moderna fastigheter med 3 rymliga sovrum med inbyggda garderober (det viktigaste på bottenvåningen, med badrum och omklädningsrum en suite), 2 rymliga badrum, stort vardagsrum med matsal med öppet kök, rymliga terrasser. Kök utrustat med basenheter och bänkskivor i silestone, med keramikhäll, ugn, fläktkåpa, kylskåp, tvättmaskin, diskmaskin och aerotermisk värmare. Första kvaliteter: interiör snickeri i trä och vitlackerade laminat, exteriör snickeri i antracitgrå pvc med dubbelglas och köldbrygga och automatiska persienner med aluminiumlameller, keramiska golv av 1: a kvalitet halkfri, släta väggar, säkerhetsdörr med 5 förankringspunkter, stora inbyggda garderober. Staden Polop erbjuder ett fantastiskt utbud av alternativ för älskare av det stora utomhus omgiven av natur och oöverträffad fred. Kommunen har ett medelhavsklimat med svalare temperaturer och renare luft och ligger mindre än 10 kilometer från Benidorm, Altea och deras stränder. Den sträcker sig från floderna Guadalest och Algar till staden Villajoyosa, inklusive stränderna Albir och Benidorm; inåt landet gränsar den till Callosa och Guadalest. 669
Telefon +34 681 953 591
Om du vill ha mer information om denna fastighet, vänligen skicka ett meddelande till Alva. Du kan kontakta henne via Whatsapp eller genom att fylla i följande formulär.
Kontakt av whatsapp