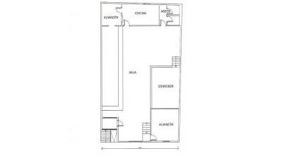
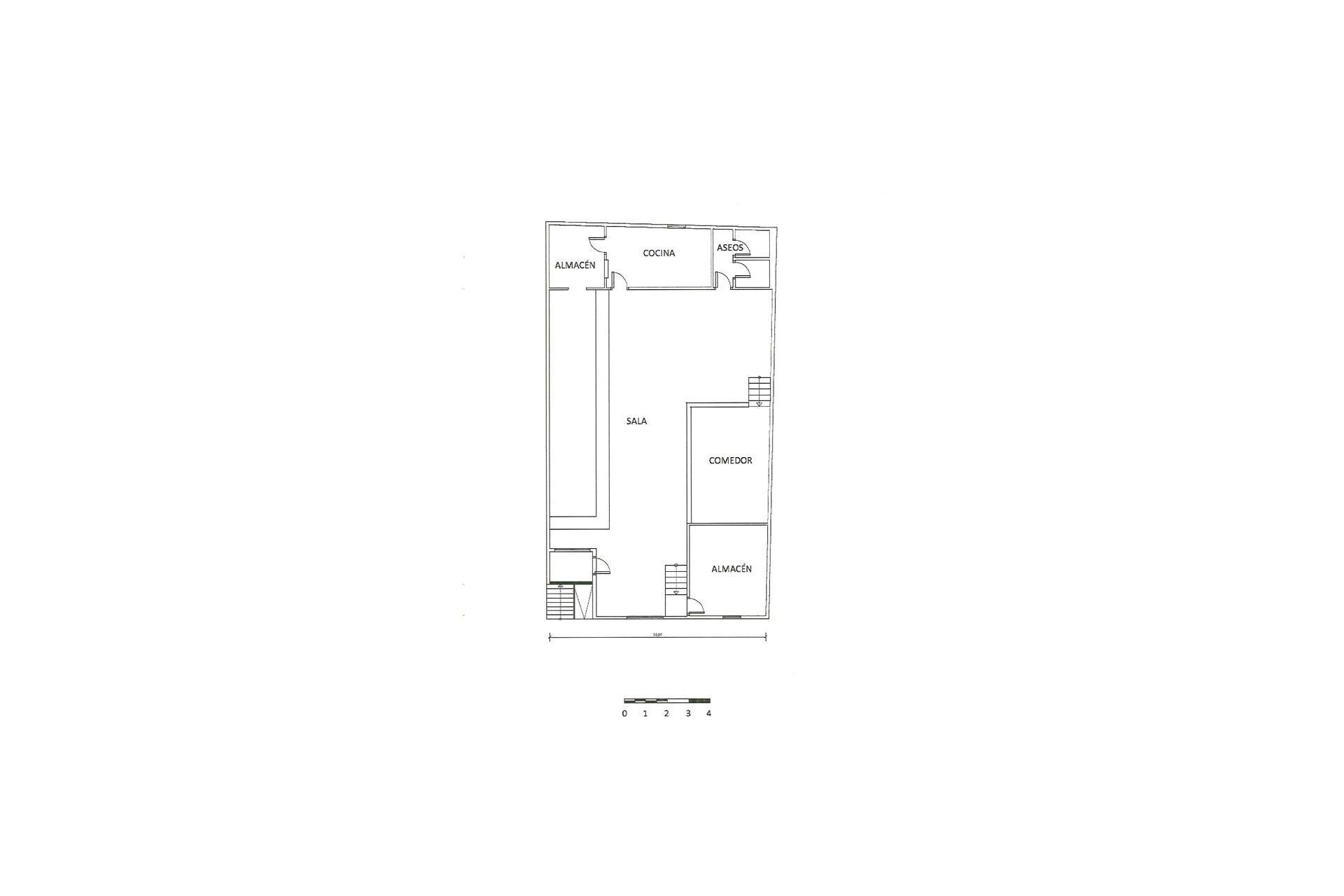
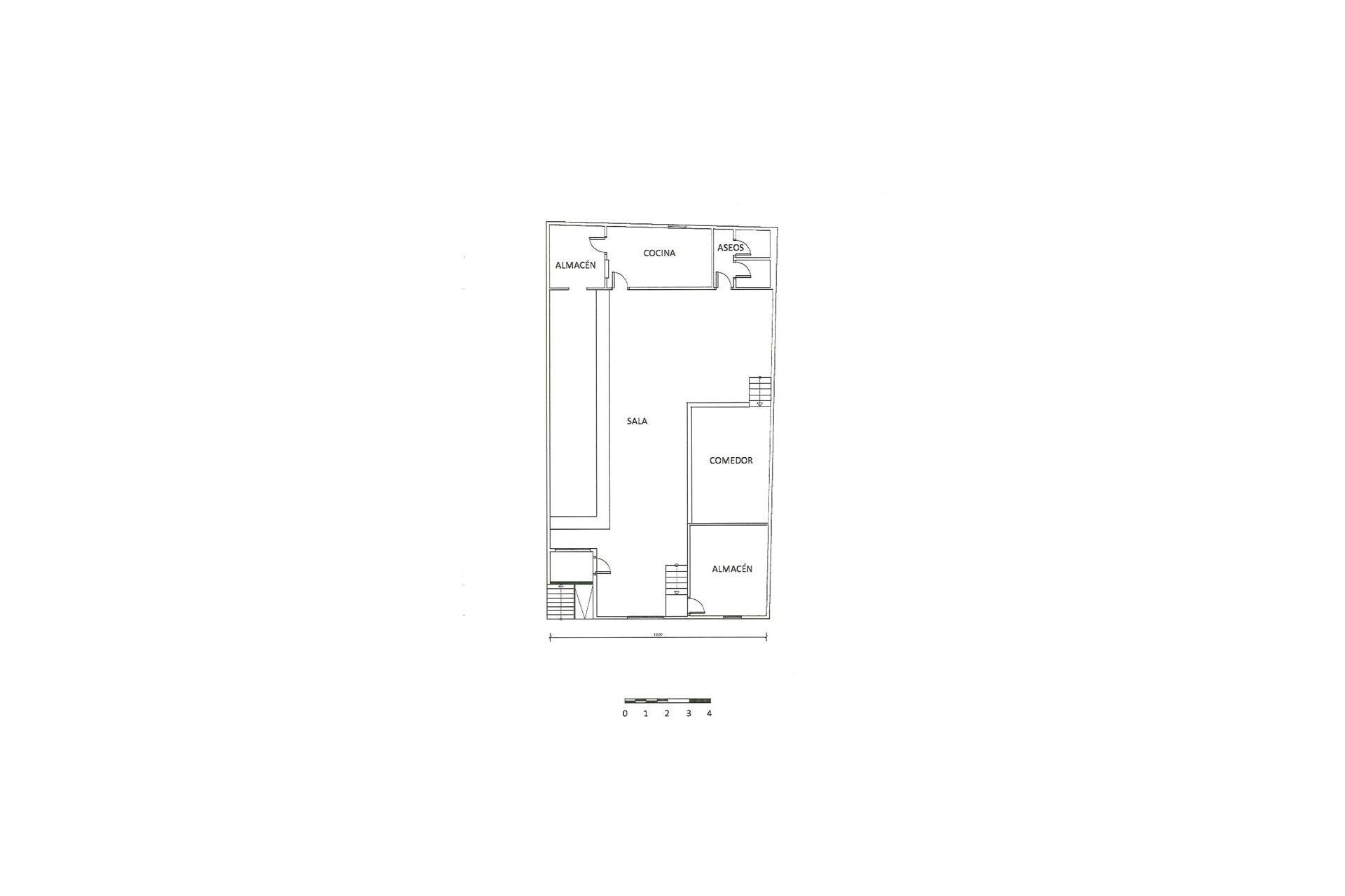
Presentamos este amplio local comercial situado en una de las zonas más demandadas de Torrevieja: Playa del Cura, a tan solo 130 metros del mar. Una ubicación estratégica que combina un alto tránsito peatonal durante todo el año con la gran afluencia de turistas en temporada alta. El inmueble dispone de 149 m2 construidos, ofreciendo un espacio amplio y versátil que puede adaptarse a múltiples tipos de negocio. Actualmente el local se encuentra para reforma integral, lo que brinda una excelente oportunidad para diseñarlo completamente a medida según las necesidades del negocio. Sus características lo convierten en una opción ideal para desarrollar un restaurante, cafetería, tienda, oficina, gimnasio boutique, centro de estética o cualquier otro proyecto comercial. La propiedad también dispone de dos baños y un amplio trastero, aportando mayor funcionalidad y posibilidades de almacenamiento. En definitiva, se trata de una excelente oportunidad de inversión en una de las zonas más atractivas de la Costa Blanca, perfecta tanto para emprendedores como para inversores que buscan un local con gran potencial de rentabilidad cerca del mar.
Teléfono +34 681 953 591
Si quieres más información sobre este inmueble, envíale un mensaje a Alva. Puede contactar por Whatsapp o rellenando el siguiente formulario.
Contacte por whatsapp