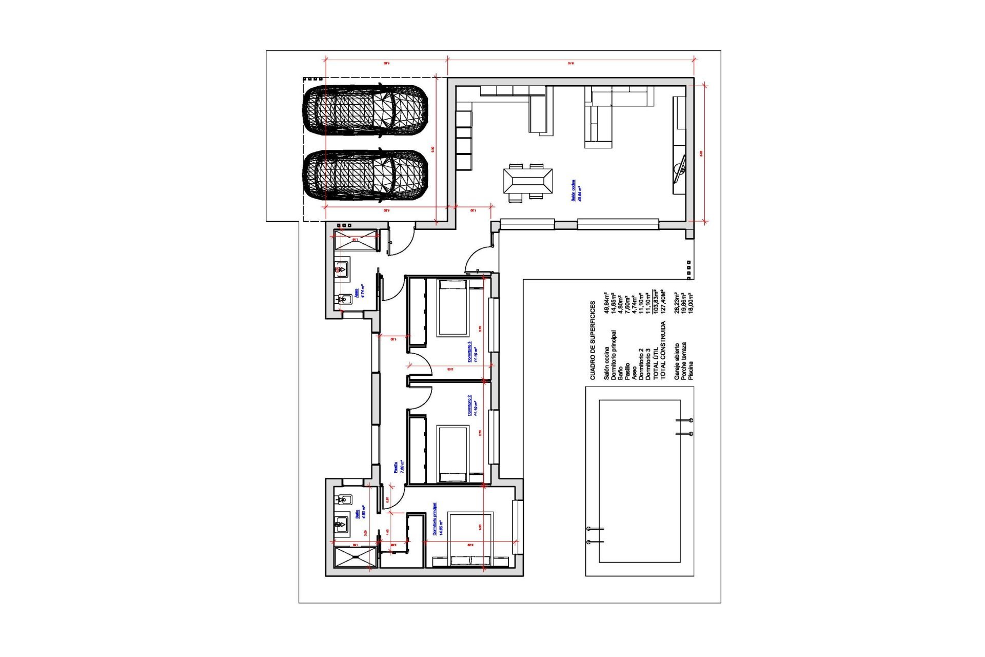
Moderna villa de nueva construcción en una gran parcela rústica en Pinoso Vida contemporánea en un entorno rural tranquilo Descubra esta elegante villa de nueva construcción situada en una amplia parcela rústica de 10.700 m2 a las afueras de Pinoso, Alicante. Diseñada para aquellos que buscan privacidad, tranquilidad y una estrecha conexión con la naturaleza, esta moderna vivienda combina la arquitectura contemporánea con el encanto del campo español. Rodeada de viñedos, almendros y olivares, la propiedad ofrece un estilo de vida sereno a poca distancia en coche de todos los servicios locales. Amplia villa de una sola planta con piscina privada La villa se distribuye en una sola planta y cuenta con 3 dormitorios y 2 baños, uno de ellos en suite. La distribución diáfana sigue un diseño en forma de L, separando la zona de estar de los dormitorios para mayor comodidad y privacidad. La zona de día cuenta con techos altos que realzan la sensación de espacio e inundan el interior de luz natural. En el exterior, podrá disfrutar de una terraza privada y una piscina, perfectas para relajarse y divertirse bajo el sol del Mediterráneo. La propiedad también incluye una zona de aparcamiento cubierta para dos coches, todo ello dentro de una gran parcela rústica que ofrece infinitas posibilidades para la jardinería, las zonas de ocio o simplemente para disfrutar de las vistas de los alrededores. Características modernas y acabados de calidad Esta villa de nueva construcción está equipada con aire acondicionado por conductos para disfrutar de comodidad durante todo el año. La cocina está totalmente equipada con electrodomésticos, lo que ofrece un espacio funcional y elegante para la vida diaria. El diseño moderno, combinado con materiales de calidad, garantiza una vivienda cómoda y de bajo mantenimiento, ideal para vivir de forma permanente o como refugio en el campo. Ubicación cerca de la ciudad de Pinoso La propiedad se encuentra a las afueras de la ciudad de Pinoso, un encantador pueblo del interior con menos de 8000 habitantes. Conocido por su ritmo de vida relajado y su auténtico ambiente español, Pinoso ofrece una amplia gama de servicios, como bares, restaurantes, tiendas, un centro médico abierto las 24 horas, dentistas, colegios de primaria y secundaria, un teatro y un moderno complejo deportivo con piscinas al aire libre, pistas de tenis, campos de fútbol y un gimnasio. El centro de la ciudad de Pinoso está a unos 3 km. La ciudad de Alicante está a unos 55 km, mientras que las playas de arena blanca de la Costa Blanca se encuentran a unos 50 km. El aeropuerto internacional de Alicante está a unos 60 km de la propiedad. La región también está cerca de la frontera con Murcia, lo que añade más opciones de conectividad y estilo de vida. Un auténtico estilo de vida español rodeado de naturaleza Vivir en Pinoso significa disfrutar de un estilo de vida rural tradicional, sin apenas tráfico, con paisajes abiertos y un fuerte sentido de comunidad. En febrero, el campo circundante cobra vida con los almendros en flor, creando un espectacular espectáculo natural. La casa de sus sueños en el campo le espera Esta moderna villa de nueva construcción en Pinoso ofrece el equilibrio perfecto entre el confort contemporáneo y la tranquilidad de la vida rural. Póngase en contacto con nosotros hoy mismo para obtener más información o concertar una visita y dar el primer paso hacia su nueva casa en la campiña española. 669
Teléfono +34 681 953 591
Si quieres más información sobre este inmueble, envíale un mensaje a Alva. Puede contactar por Whatsapp o rellenando el siguiente formulario.
Contacte por whatsapp