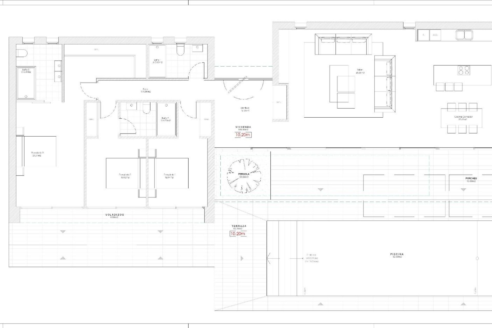
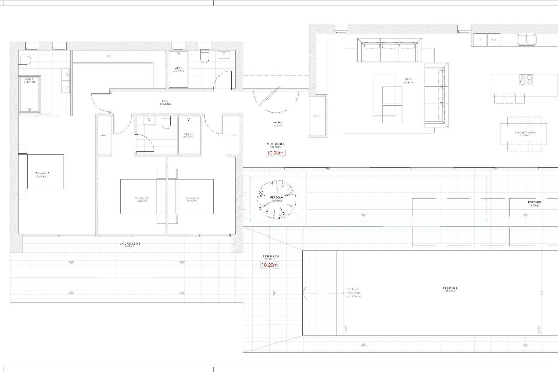
Villa de nueva construcción en venta en Calpe - Diseño moderno a solo 900 m de la playa Exclusiva villa de nueva construcción en una zona residencial privilegiada de Calpe Situada en una de las zonas residenciales más cotizadas de Calpe, esta villa de nueva construcción ofrece la combinación perfecta de confort moderno, privacidad y excelente proximidad al centro de la ciudad y a las playas. A solo 900 metros de la costa y a pocos minutos de todos los servicios esenciales, esta propiedad se encuentra a las afueras de la ciudad, lo que le proporciona un entorno tranquilo y seguro. Vivienda de una sola planta con distribución diáfana Diseñada para ser práctica y funcional, la villa se distribuye en una sola planta, lo que la hace ideal tanto para familias como para jubilados. La entrada da a un luminoso vestíbulo que se abre a un amplio salón-comedor de planta abierta con una moderna cocina con isla y un lavadero independiente. Grandes puertas correderas conectan el interior con un porche cubierto con barbacoa incorporada, una amplia terraza y una piscina privada de 52 m². Tres dormitorios y cuatro baños para el máximo confort La zona de noche está inteligentemente distribuida en el ala derecha de la vivienda y consta de: Una suite principal con vestidor y baño en suite Un segundo dormitorio con baño en suite Un tercer dormitorio con acceso a un baño completo en el pasillo Un baño adicional con acceso exterior, diseñado para dar servicio a la zona de la piscina Acabados de lujo y especificaciones de primera calidad Esta villa está construida con los más altos estándares e incluye: Calefacción por suelo radiante y aire acondicionado por conductos totalmente instalado Sistema de domótica Sistema de alarma para mayor seguridad Carpintería exterior de alta gama con rotura de puente térmico y persianas motorizadas en los dormitorios Muebles de cocina de diseño con electrodomésticos integrados Jardín paisajístico con setos de cipreses que aumentan la privacidad Aparcamiento privado cerrado para dos vehículos Descubra Calpe y sus alrededores Calpe es una joya costera de la Marina Alta alicantina, conocida por su mezcla de encanto valenciano y comodidades modernas. La localidad cuenta con tres hermosas playas de arena, el emblemático Peñón de Ifach y dos clubes náuticos: el Real Club Náutico de Calpe y el Club Náutico Puerto Blanco. Distancias a los principales puntos de interés: Playa: 0,9 km Centro de Calpe: 1,5 km Altea: 11 km Benidorm: 22 km Golf Ifach: 9 km Aeropuerto de Alicante: 78 km (aprox. 1 hora) Aeropuerto de Valencia: 130 km (aprox. 1,5 horas) Su hogar ideal en el corazón de la Costa Blanca Disfrute de lo mejor de la vida mediterránea. Póngase en contacto con nosotros hoy mismo para concertar una visita y hacer de esta preciosa villa en Calpe su próximo hogar. 669
Teléfono +34 681 953 591
Si quieres más información sobre este inmueble, envíale un mensaje a Alva. Puede contactar por Whatsapp o rellenando el siguiente formulario.
Contacte por whatsapp