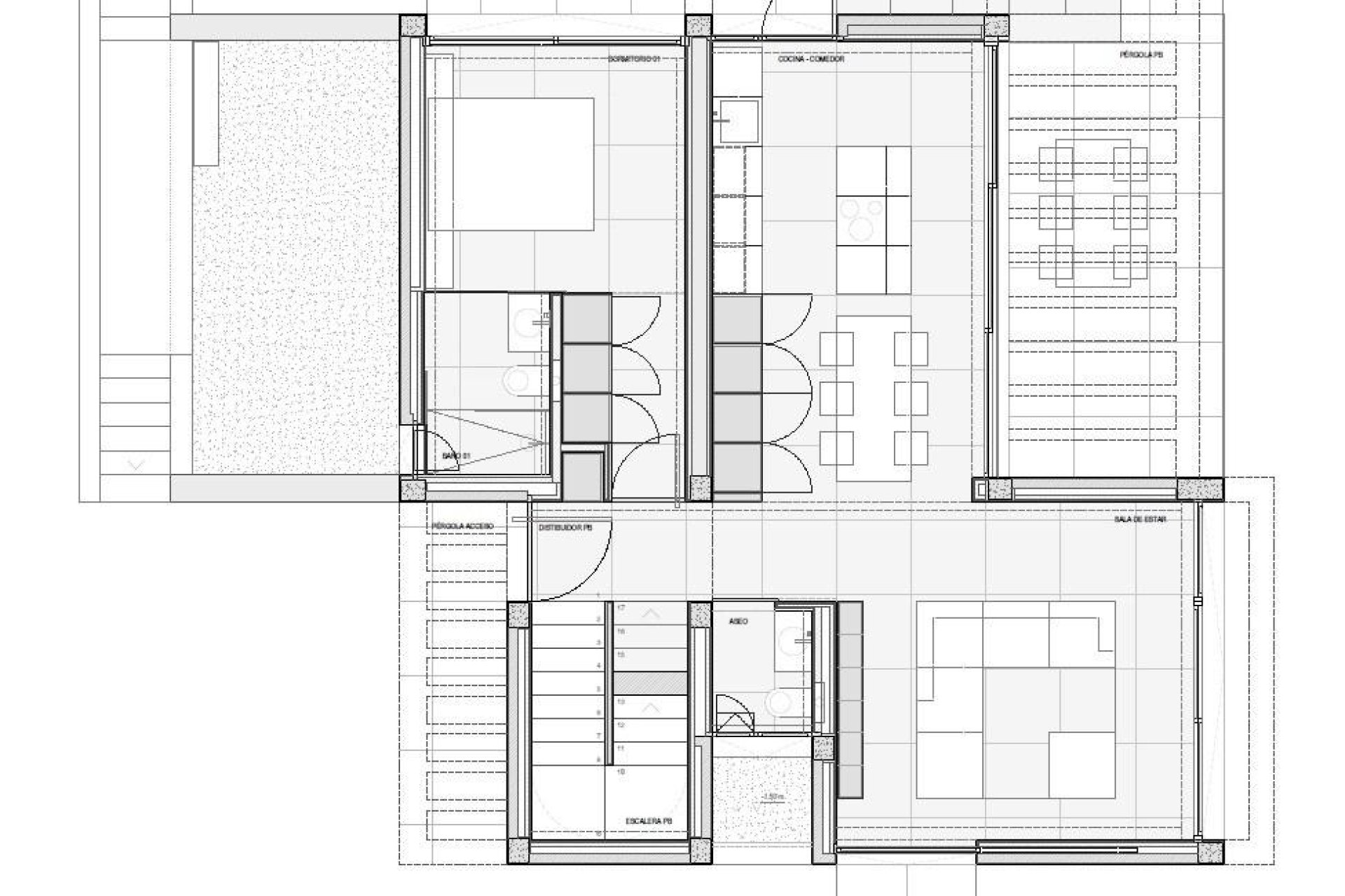
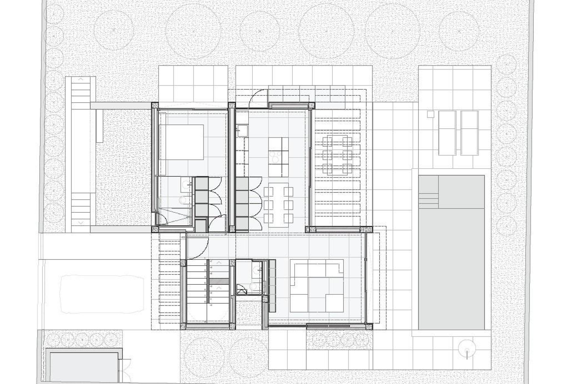
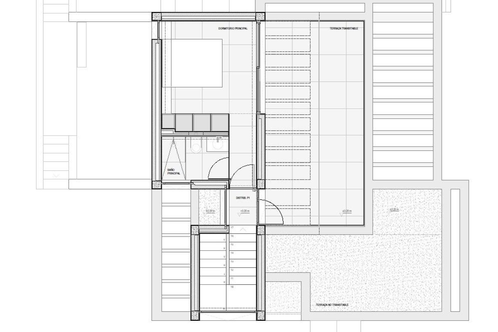
New Build Luxury Villa with Sea Views in La Alberca Polop Contemporary Design in a Peaceful Mountain Setting This exceptional new build villa is located in La Alberca, a quiet residential area in the mountains of Polop. Surrounded by forest and nature, the property offers panoramic views of the Mediterranean Sea, the mountains and the historic town of Polop. Designed with vertical architectural elegance, the villa combines privacy, functionality and seamless indoor outdoor living. Polop is a charming Costa Blanca village known for its traditional atmosphere and natural beauty. The villa is close to all services in La Nucia, including shops, restaurants, sports centers and schools. The beaches and lively coastal towns such as Benidorm and Altea are just 15 minutes away. Thoughtfully Designed Distribution Across Three Levels The main floor welcomes you with an entrance hall featuring a built in wardrobe and guest restroom. This level includes one en suite bedroom with floor to ceiling elevable window doors opening onto a private side terrace. The bright open plan living and dining area connects directly to a pergola covered terrace and the private saltwater swimming pool, creating a harmonious indoor outdoor lifestyle. The top floor is dedicated exclusively to the master suite. This private level offers an en suite bedroom with access to a spectacular 40 m2 terrace and breathtaking panoramic sea and mountain views, ensuring maximum privacy and comfort. The basement level features two additional bedrooms with large windows overlooking a beautifully designed sunken courtyard that fills the space with natural light. A shared bathroom, fully equipped laundry room with Haier appliances and two spacious technical and storage rooms complete this floor. Premium Features and Energy Efficiency The villa includes high quality finishes and advanced systems, such as: Central island kitchen with integrated BOSCH appliances Natural stone countertops indoors and outdoors Panoramic windows with sun protected reinforced glass Mitsubishi aerothermal air conditioning system Underfloor heating pre installation Energy efficiency rating Class A Pre installation for smart home system Private parking for two vehicles The landscaped Mediterranean garden with automatic irrigation and an elegant lower level courtyard enhance privacy and relaxation. The roof level is prepared for solar panel installation. Excellent Location and Distances Polop center 2 km La Nucia 4 km Benidorm beaches 12 km Altea 10 km Villaitana Golf 14 km Alicante Airport 65 km Discover Your Private Retreat in Polop This modern sea view villa offers design, privacy and comfort in one of the most attractive natural settings on the Costa Blanca. Contact us today to arrange a private viewing and secure your new home in La Alberca Polop. 669
Phone +34 681 953 591
If you would like more information about this property, please send a message to Alva. You can contact by Whatsapp or by filling in the following form.
Contact by whatsapp