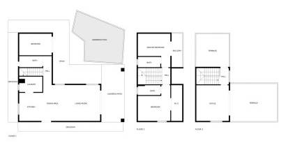
CONTEMPORARY 4-BEDROOM VILLA WITH PRIVATE POOL IN CENTRAL CIUDAD QUESADA This stylish south-facing contemporary villa, built in 2020 and maintained to an excellent standard, offers elegant design, generous living spaces, and a highly desirable central location in Ciudad Quesada. Combining modern architecture with everyday comfort, the property is ideal for family living, permanent residence, or luxury holiday use. Key Features Contemporary detached villa (built 2020) 4 bedrooms and 3 modern bathrooms 153 m² build size on a 533 m² private plot Private L-shaped saltwater swimming pool (approx. 7 x 4 metres) Secure off-road parking on gated driveway Open-plan kitchen with quality appliances South-facing orientation for all-day sunshine Rooftop solarium with panoramic views Laundry / utility room and storage room Air conditioning (hot & cold) Underfloor heating in bathrooms Solar panels Energy efficiency rating: B Walking distance to shops, cafés, and services (approx. 300 m) Property Description The villa is arranged across three levels, thoughtfully designed to maximise natural light, comfort, and functionality. The main floor features a bright open-plan living, dining, and kitchen area, creating a welcoming and airy atmosphere. Large windows overlook the private pool and garden, seamlessly connecting indoor and outdoor living. A separate utility room adds practicality, while a stylish guest bedroom and full bathroom complete this level. On the first floor, you will find two generously sized bedrooms, each with its own en-suite bathroom. One bedroom benefits from a walk-in wardrobe, while the other opens onto a private balcony with views over the garden and pool area. The top level offers a versatile fourth room, ideal as a home office, studio, or additional guest space. From here, two spacious terraces provide far-reaching views across Ciudad Quesada, the surrounding countryside, the salt lakes, and even glimpses of the Mediterranean Sea. Outdoor Areas The exterior spaces are designed for easy maintenance and year-round enjoyment, featuring multiple terraces for dining and relaxation, a dedicated sunbathing area, and a private saltwater swimming pool. The fully enclosed plot also offers secure parking within the gated driveway. Location & Lifestyle Located in a quiet cul-de-sac just moments from the heart of Ciudad Quesada, this villa enjoys one of the most convenient and sought-after positions in the area. Everyday amenities including supermarkets, cafés, restaurants, pharmacies, and shops are all within a short 300-metre walk. Ciudad Quesada is a vibrant and well-established community offering a wide range of leisure activities such as golf at La Marquesa, bowling, mini golf, an aqua park, cycling routes, and scenic nature walks. The presence of respected Norwegian and British international schools further enhances the area’s appeal for families. Guardamar del Segura beaches: approx. 9 km (10 minutes) Alicante Airport: approx. 38 km (35 minutes) La Marquesa Golf: approx. 4 km Shops and amenities: approx. 300 m This central yet peaceful setting makes the property perfectly suited for full-time living, holiday use, or high-value rental investment. Additional Details Double-glazed windows for energy efficiency Easy-maintenance saltwater pool Multiple terraces for entertaining and relaxation Solarium with panoramic and partial sea views Contemporary finishes and high-quality flooring South-facing orientation maximising natural light throughout Next Steps Contact us to arrange your private in-person or virtual viewing of this exceptional villa. A full video tour is also available upon request, allowing you to experience the property from anywhere in the world.
Phone +34 681 953 591
If you would like more information about this property, please send a message to Alva. You can contact by Whatsapp or by filling in the following form.
Contact by whatsapp